Nyizsnyij Novgorod az ötödik legnagyobb, egy szent (Jurij Vszevolodovics) által alapított, város Oroszországban.
803 éves történelem, ipari központ, a Volga és az Oka folyó, Gorkij és a naplementék és sok érdekes látnivaló található itt. Például itt is van Kreml (fellegvár). Nem véletlen, hogy a történelmi- és műemlékek egy részét 1992-ben felvették az UNESCO Világörökség listájára. Gondolhatnánk, hogy itt aztán egy fullpanorámás lakás megfizethetetlen.
Nem eszik olyan forrón a kását! Mások a léptékek, más a gondolkodás. A Karkasz Monolit cégcsoport a nagy komplexumok építésére specializálódott. Így született meg, monolit vasbetonból, a KM TOWER Plaza, ahol üzletek és lakások is vannak. A Bikov építész iroda munkatársait állítólag az Empire elemek, az archaikus egyiptomi művészet és az afrikai művészet kombinációja inspirálta az Art Deco stílusú épület megalkotására. (A homlokzatra 80 év garanciát vállaltak.)

A KM Tower Plaza egy kétszintes épület, aminek egy tizenkilenc és egy tizenkét emeletes része van, összesen 504 lakással. A legkisebb 21, a legnagyobb 104,4 négyzetméter. Úgy mondják, hogy a tervezők a luxusotthonok és a drága szállodaláncok legjobb dizájnját vették át: tágas hall, luxus étterem, világos közösségi terek. A lakások akár 3,05 m belmagassággal is rendelkezhetnek.
A komplexum lakói határozottan érezhetik a felsőbbrendűségüket a metropolisz dinamikus ritmusában.
Na, most, hogy mindezt tisztáztuk, nézzük a fullpanorámás lakás dolgot! Ha valakinek van kedve megtekinteni az itt megteheti. Nem volt a legjobb ötlet, hogy egy ilyen tavaszi időpontban rögzítették az orosz távlatokat, mert az, aki nem az Oka folyóra néz egy cseppet csalódott lehet. De legalább a kisebbik épület lakói is láthatják, ahogy az Oka és a Volga folyó találkozik.

Szóval (persze ez csak a mi véleményünk) nem nagy truváj az a címke, hogy fullpanorámás lakás. Még akkor sem, ha a történelmi városrész valóban nincs annyira messze és, akik nem folyót látják, talán látnak valamit a sokszázéves nevezetességekből. Vagy abból, ami megmaradt belőlük. Nem is véletlen, hogy a legtöbb lakást befektetési céllal vásárolták és turisták számára adják ki.
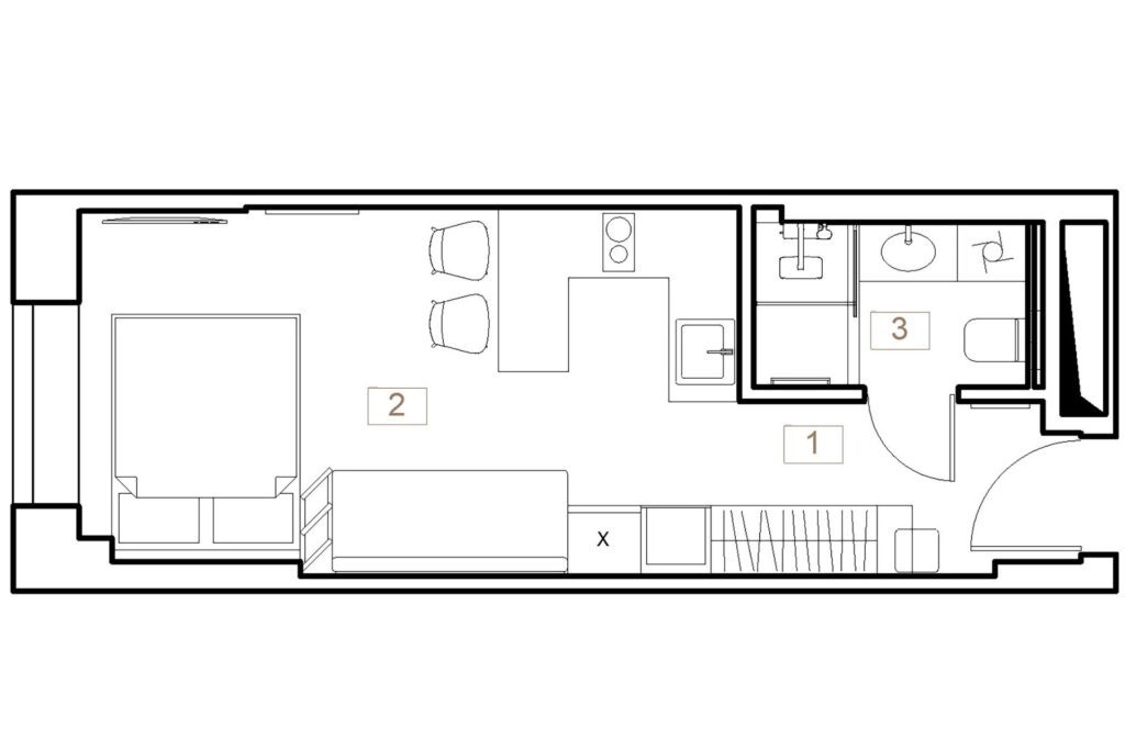
Most, hogy mindent kiveséztünk, ami egy kis lakás eladásában nagy szerepet játszhat, nézzük mit hozott ki az Ego Dizájn Stúdió egy 24,69 m2-es lakásból!
Kezdjük azzal, hogy a belmagasság 2,8 m. Ezt a stúdiólakást is befektetési céllal vásárolták, rövid távú bérbeadás céljából turisták számára adják ki. A 2023-ban elkészült lakás ablakaiból panorámás kilátás nyílik az Oka folyóra és Nyizsnyij Novgorod hátsó külterületi részére.

A tervező Irina Morozova elmondása szerint az ügyfél igényei szerint járt el és a legmagasabb szállodai szabványoknak megfelelően alakította ki a lakást, amelyben négy ágy van. Továbbá a kifinomult színvilág drágának tünteti fel a megjelenést. No, hát nem cicóztak az elvárásokkal, mert, ha már befektetünk, az ugye, térüljön is meg hamar-hamar! Egyébként az EGO Design építésziroda magánlakások és belső terek tervezésére szakosodott. Kényelmes és stílusos tereket hoznak létre, amelyeket a legérdekesebb dolgokkal szerelnek fel. Székhelyük Nyizsnyij Novgorodban van.

Az alaprajzon nem változtattak, de igyekeztek minden négyzetcentiméter hasznos teret kihasználni. Még az ablakok oldalán lévő betonpilléreket sem hozták egy síkba a falakkal. Az alvóhelyet az ablak közelébe tervezték, hogy a vendégek közvetlenül az ágyból is gyönyörködhessenek az Oka folyóra nyíló kilátásban. A hálószobát a nappalitól egy plafonig érő polc választja el.

A stúdiólakásban a falakat semleges világos árnyalatra festették, a padló laminált, a mennyezet pedig matt fehér. A színvilágot egy összetett sötétzöld árnyalat határozza meg, amelyet világosszürke és meleg barna-narancs árnyalatokkal egészítettek ki.


Szándékosan alakították ki a konyhai részt úgy, hogy a lehető legvilágosabb legyen, és vizuálisan ne terhelje túl a teret.

A felső szekrénysor is csak a tűzhely felé került, amibe a szellőzőcsatornával ellátott páraelszívót is elrejtették. Egy rekeszt terveztek a mikrohullámú sütő számára és a munkalap is sima műkőből készült.

A mosogató mögötti falat ezzel szemben színes terrazzo csempékkel emelték ki és egészen a mennyezetig burkolták. Ez segített abban, hogy vizuálisan hangsúlyozzák a mennyezet magasságát és egybefüggővé tegye a falsíkot.

Az étkezőasztal helyett bárpultot helyeztek el, ami kevesebb helyet foglal el, és vizuálisan segít a teret zónákra osztani. Így konyhára és nappalira osztja a helyiséget.

A konyha teljes körűen felszerelt, beleértve a mosogatógépet és az ajtóval eltakart mosógépet is. A nagy méretű beépített hűtőszekrény és sütő a szemközti falra került, abba a gardróbsorba, ami egy az előszobából induló tárolórendszer is.

A konyhasarokkal szemben található a társalgó egy pótággyal. A két személy részére is megfelelő, karfa nélküli, ággyá nyitható világosszürke kárpitozású kanapé árnyalata még jobban kiemeli a sötétzöld falat mint hátteret és mint színt is. Érdekesség, hogy a kanapé modelljét a tervezési szakaszban választották ki, de a többi bútort már a méretekhez igazítva vásárolták.

A hálórészben egy puha fejtámlával rendelkező és világosabb kárpitozású ágy található.
Azért, hogy az alvórész kevésbé legyen látható a bejárat felől, egy keskeny, lábakon álló, de plafonig érő kisebb polcrendszert alakítottak ki fakkokkal. Az egész belső tér hangulatát a nagy panorámaablak határozza meg, ami alacsony párkánnyal rendelkezik. Ez lehetővé teszi, hogy az aktuális lakók élvezzék azt a feelinget, amiért a város a naplementék fővárosa nem hivatalos címet kapta. Egy csésze kávé, egy forró tea, egy habos forrócsoki és a párkányra ülve máris lehet gyönyörködni a naplementében.

Mint azt korábban említettük, az előszoba és a folyosó nagy részét egy tárolórendszer foglalja el, ahová a hűtőszekrény és a sütő is be van építve. Annak köszönhetően, hogy a magasságát a mennyezetig vitték, és a frontokat a falak színéhez igazították maga a szekrény nem hívja fel magára a figyelmet.

A fürdőszoba mindennek az ellenpontja.
A kisméretű csempe narancssárga színű és terrazzo burkolattal kombinálták. A fekete részletek kontrasztot teremtettek, hiszen a világosabb padlóburkolat felkúszott a falra. A zuhanyzó a kis méret miatt egyszerű épített walk-in zuhanyfal-típus. A szekrény és a tárolószekrény függesztett, hogy ne legyen zsúfolt a kis helyiség, és könnyebb legyen a WC körüli padló takarítása. A szekrény frontja mögött pedig egy nagy bojlert rejtettek el.

Kis átalakítással nem lehetetlen olyan helyet kialakítani ebből a lakásból, amely támogatja az állandó ottlakást, de ebben az esetben halványulna a dizájn ereje. Azért, van benne egy-két izgalmas ötlet.


