Szerte a világban a magas lakásárak miatt a néhány négyzetméteres kis házak az új városi életterek közé kerültek.
Viszont egy nagyon korlátozott alapterületű (23 négyzetméteres mikrotér ) ingatlan funkciói és igényei, a tulajdonos viszonylag nagy mozgástere, hobbijai és magánéleti szokásai kiindulópontként kell, hogy szolgáljanak egy tervezési koncepció során. A NestSpace Design tervezői Ye Juncheng, Ye Junting ezt az elvárást ugrották meg sikerrel.

Az alábbi ingatlan tulajdonosa szereti a metal zenét, és számos kapcsolódó gyűjtemény tulajdonosa. Így a Rock n’ Roll az élete és merész “felforgatás” szimbóluma lett. Ezért a 23 négyzetméteres mikrotér is lehetővé tette a tulajdonos számára, hogy érezze a tágasságot. A kulcs az életstílus mélysége és rugalmassága. A tulajdonos szerint a 23 négyzetméteres mikroméret sem tudja megállítani a lelkében rejlő vadságot. Bármennyire is korlátozza szívemben a fantáziát a koncentrált városi élet, továbbra is keményen küzdök és dolgozom, hogy kiszabaduljak a korlátok alól.

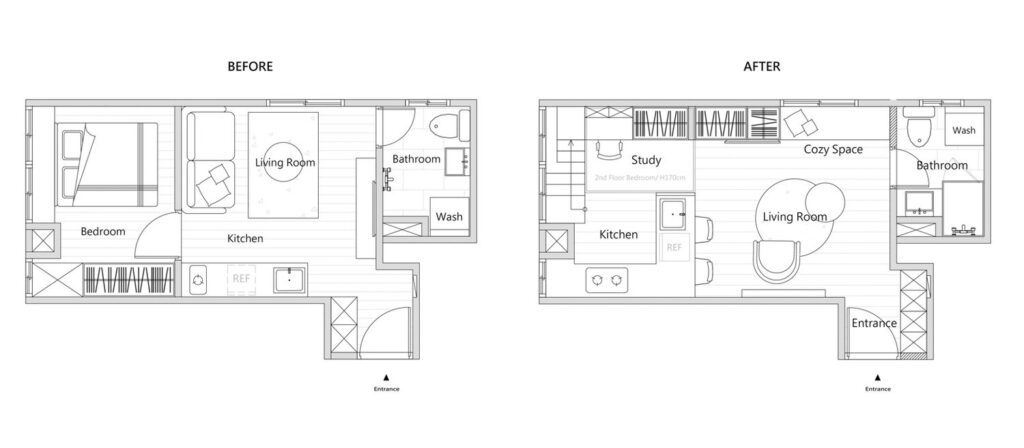
Az alaprajzon a “minimalizálás” és a világtól való távollét csapásirányait használták az egész tervezés során.
Minden blokk olyan, mint egy mini sziget, amelyet az egyének különböző igényei szerint lehet használni, és minél beljebb megyünk, annál távolabb kerülünk a külvilág nyüzsgésétől.

A ház rétegeinek fokozatos elrendezése magába foglalja az összes teret, amellyel egy háznak rendelkeznie kell és visszhangozza az egyén tájékozódásának teljességét. A síktól a vertikális fejlődés felé haladva, a közterületről a privát térbe érve találhatunk rá a belső énre.

A “két bejárat” gondolatán keresztül hagyjuk, hogy az ajtón belépve a folyosó először megváltoztassa a hazaérkezés hangulatát. Másodszor pedig a burkolt vasalkatrészekből álló láthatatlan ajtó ismét megszűri az emberek lelkiállapotát. Aktiválva a belső lét mélyebb rétegeit.

A középső közösségi tér a szabad síkhoz igazodik. A négyzetes alaprajz pedig szándékos, hogy a lakástulajdonos könnyen alkalmazkodhasson a különböző élethelyzetekhez. Például a barátokkal való zenéléshez és az étkezéshez. Az ablak melletti hálószobai kanapé nemcsak a fényhez csatlakozó bejárati kilátásként szolgál, hanem kanapé funkcióval is rendelkezik.

A dolgozószoba a duplex (dupla emelet) alsó részébe van beépítve, visszaadva a háztulajdonos biztonságérzetét, hogy szereti, ha egyedül van. Míg a nyitott konyha a középső szigetet összekötő közvetítőként használja. Így a tér még mindig érdekes a “kezdet és a vég” szempontjából.

A duplex építészet egy olyan építészeti stílus, amelyben egy épület két különálló lakóegységet foglal magában, amelyek gyakran egymás mellett vagy egymás fölött helyezkednek el. Ezek a lakóegységek közös falakkal rendelkeznek, de külön bejárattal és önálló lakóterületekkel bírnak. A duplexek népszerűek mind városi, mind vidéki környezetben, és számos előnyt kínálnak az ingatlantulajdonosok és a bérlők számára.

Az érdekes anyagok és minták, valamint a lineáris fénysávok alkalmazása lehetővé teszi, hogy a fény irányítottsága megnyújtsa a látás mélységét.
A világos színpaletta pedig hozzájárul a feszültségmentes hangulathoz, miközben a Rocker szellemiség a részletekben is jelen van.

A gitár tetején lévő rozsdamentes acélmintát vitték át a térbe, és a középső sziget alatti szekrényeket ilyen festékkel fedték be, hogy diszkrét, mégis feltűnő súlypontot hozzanak létre.

A falak egy részét cementfesték borítja, finom texturális variációkkal mutatva meg a tér gazdagságát. Bár az egész lakás csak 23 négyzetméter, ez egy nyitott és privát tér, ahol teljes mértékben megoszthatja a zene szeretetét a barátaival, és egyedül is elmerülhet a gyűjteményében.
Akit érdekelne, milyen volt előtte:

fotók: Hey!Cheese


